項目名稱:北京東五環
用途:自住
面積:室內180平米,院落50平米.
北京仿古中式大宅的大氣生活.
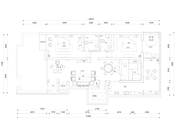
該案例位于北京東五環萬科青青家園中式裝修自住大宅,小區環境優雅,密度較低.戶型為錯層一層四居室。

戶型為四居加前后庭院,整體戶型未做大的調整,僅通過局部修改便使空間更加完整合理。

戶型進門處做了改動,增加了一個步入式衣帽間,便于日常生活使用.衣帽間側墻開一圓形景窗設置小條案,形成玄關背景.保證私密的同時又有很好的中式裝飾效果。

客廳中式裝飾通過簡單的吊頂來體現中式氛圍.客廳沙發背景墻采用黃色祥云紋壁紙將紅酸枝家具襯托的更加高貴典雅。

餐廳和客廳的空間通過啞口和掛落區分兩個空間,既相互獨立又有空間融合。
增加空間層次感,更加富有中式韻味。

在原有的客臥室空間中式裝修里設置了日式風格的茶室,既可做休閑茶室也可以方便的安排客人居住,方便靈活.很有實用功能。

北邊的庭院面積較小,在房屋北側,光照較差,因此做了陽光房封閉,改為小餐廳使用,方便家人的簡單用餐。

女兒房未做復雜的設計造型,床頭采用荷花作為中式設計元素,更加符合小女主的居住身份。

主臥做簡單的造型背景,將新風和中央空調機收納其中,除此以外僅設置簡潔的線條來體現中式感.床頭背景造型簡單大氣,充滿中式韻味。
北京大宅仿古中式裝飾設計大氣優雅生活
- 位置北京東五環
- 設計風格自住中式風格
- 面積室內180平米,院落50平米㎡
- 發布2023-11-13 10:43:31
項目名稱:北京東五環
用途:自住
面積:室內180平米,院落50平米.
北京仿古中式大宅的大氣生活.
該案例位于北京東五環萬科青青家園中式裝修自住大宅,小區環境優雅,密度較低.戶型為錯層一層四居室。
下一篇:沒有了


